Fissure - Holland Village
- Daryl Ang
- Jan 27, 2024
- 1 min read
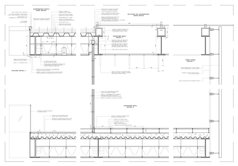
Office Typology

Abstract
Many perceive movement as a hindrance to productivity. But movement motivates and comforts people that they are not the only ones slogging. The streets of Holland Village extend into the splits between the office block, blurring the boundaries between street and office. It redefines intimidating notions of a supposedly formal space. A series of adjacent work spaces and gardens overlook each other, creating a synergistic effect and motion within the levels.












Comments